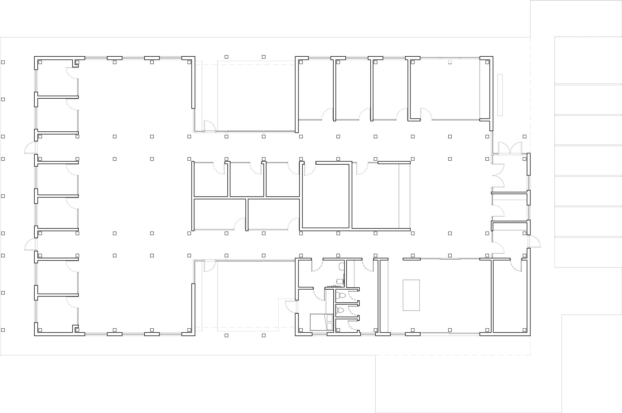
Le projet consiste en la conception d’un bâtiment de bureaux organisé autour d’une circulation claire et lisible, assurant à la fois confidentialité, confort et qualité des milieux de travail. L’architecture privilégie des espaces lumineux, ouverts sur l’extérieur, où chaque bureau bénéficie d’un lien direct avec le paysage.

Le projet s’inscrit dans une démarche d’innovation en construction bois, mettant de l’avant une structure en bois lamellé-collé et une enveloppe préfabriquée en matériaux biosourcés. La trame structurelle optimisée, basée sur la répétition des portées, permet une préfabrication efficace, une mise en œuvre simplifiée et une maîtrise des coûts, tout en offrant une grande flexibilité d’aménagement.

Deux axes de circulation longitudinaux structurent le bâtiment et facilitent l’intégration des systèmes mécaniques. Des cours extérieures ponctuent le projet, agissant comme puits de lumière et espaces de respiration, renforçant une approche biophilique favorable au bien-être des occupants.

Les espaces extérieurs deviennent le prolongement naturel des espaces intérieurs, soutenus par des principes bioclimatiques comme les débords de toiture, l’orientation des ouvertures et le contrôle de l’ensoleillement, visant un confort durable et une réduction des besoins énergétiques. Le projet propose ainsi un modèle de bâtiment commercial reproductible valorisant les produits du bois et les matériaux biosourcés québécois.

Tous les bureaux et postes de travail bénéficient d’une vue sur l’extérieur.

Les dispositifs intégrés assurent le confort et le bien-être au quotidien.

Bureaux Bois | projet pilote

Concept 2025

Précédent
Précédent

Le Grand Largue

Suivant
Suivant

Héritage Eko